Agence Atelier Flow
- Année
- 2023
- Surface
- 180 m2
- Missions
- Architecture intérieure
- Réalisation
- Localisation
- Rue Bichat, Paris X
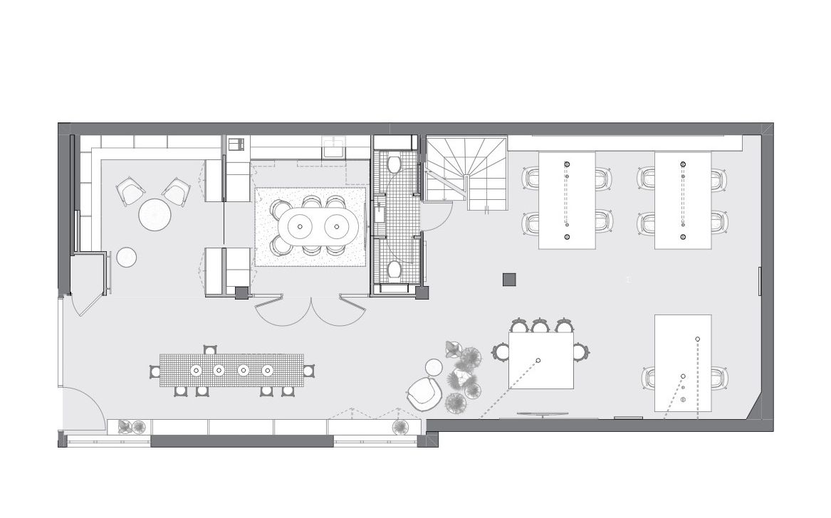
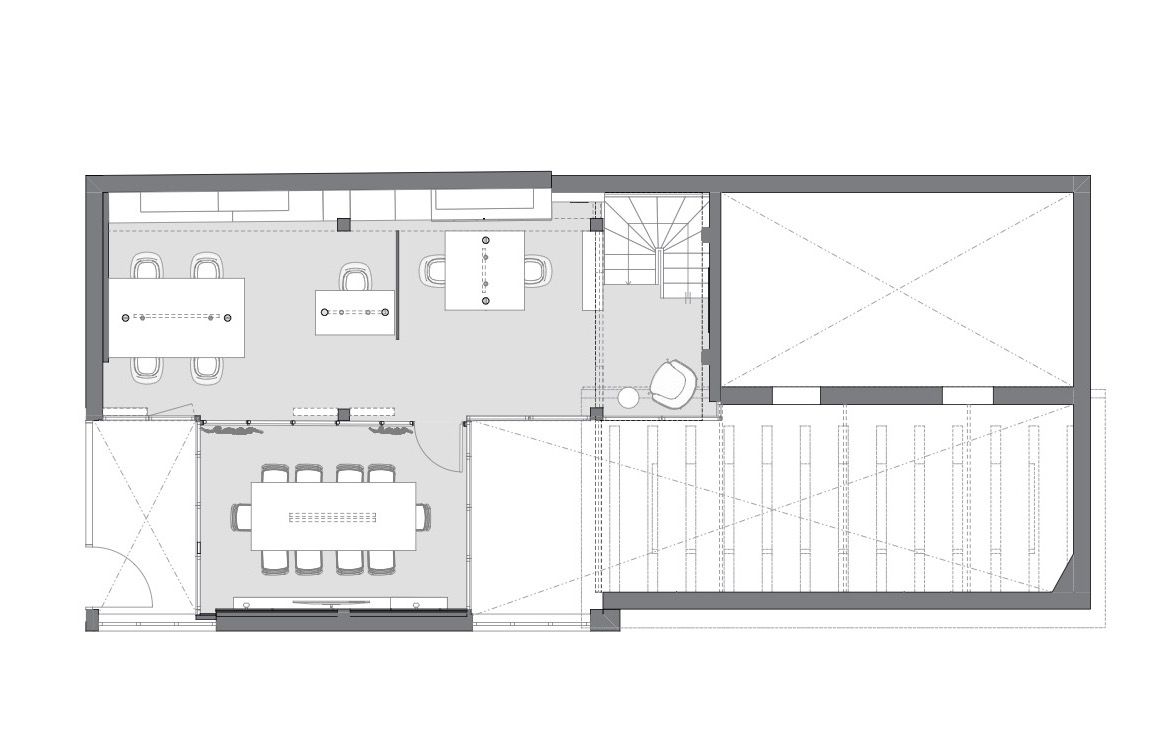
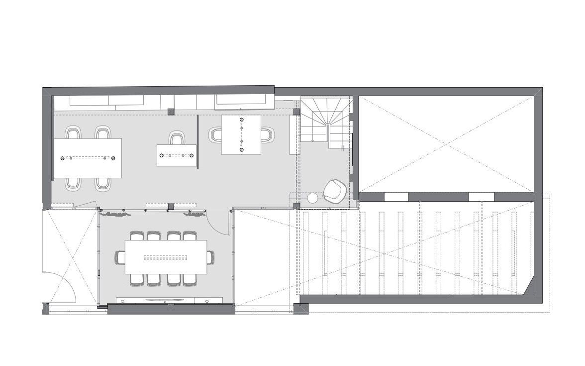
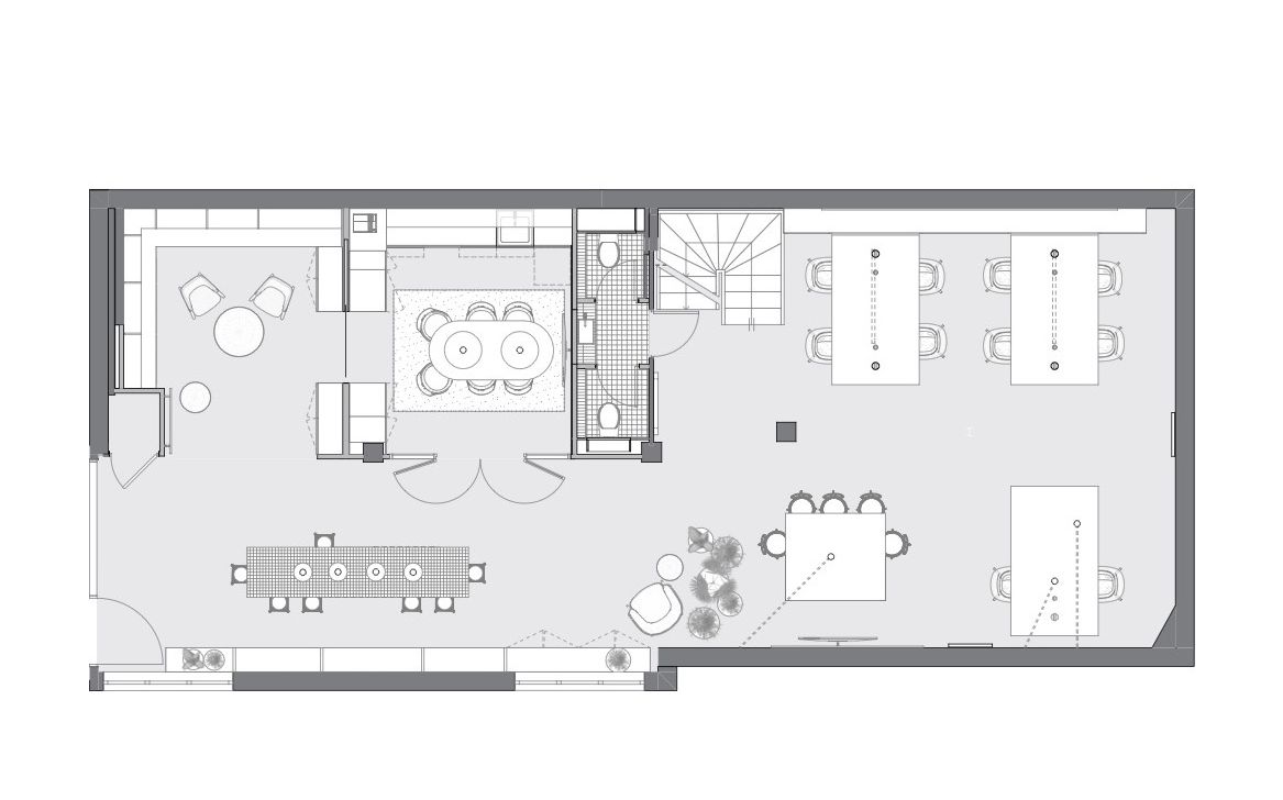
Installé au coeur du Xème arrondissement, à 2 pas du Canal Saint Martin, l’atelier invite à la création.
Un grand volume blanc baigné de lumière, une petite
jungle foisonnante, des objets singuliers de couleurs
franches, des matières naturelles; l’espace stimule,
accueil, inspire et apaise tout à la fois.
Un grand volume blanc baigné de lumière, une petite
jungle foisonnante, des objets singuliers de couleurs
franches, des matières naturelles; l’espace stimule,
accueil, inspire et apaise tout à la fois.
01 / 02