Area 17
Valmy
Valmy
- Année
- 2023
- Surface
- 300 m2
- Missions
- Architecture intérieure
- Réalisation
- Localisation
- Quai de Valmy, Paris X
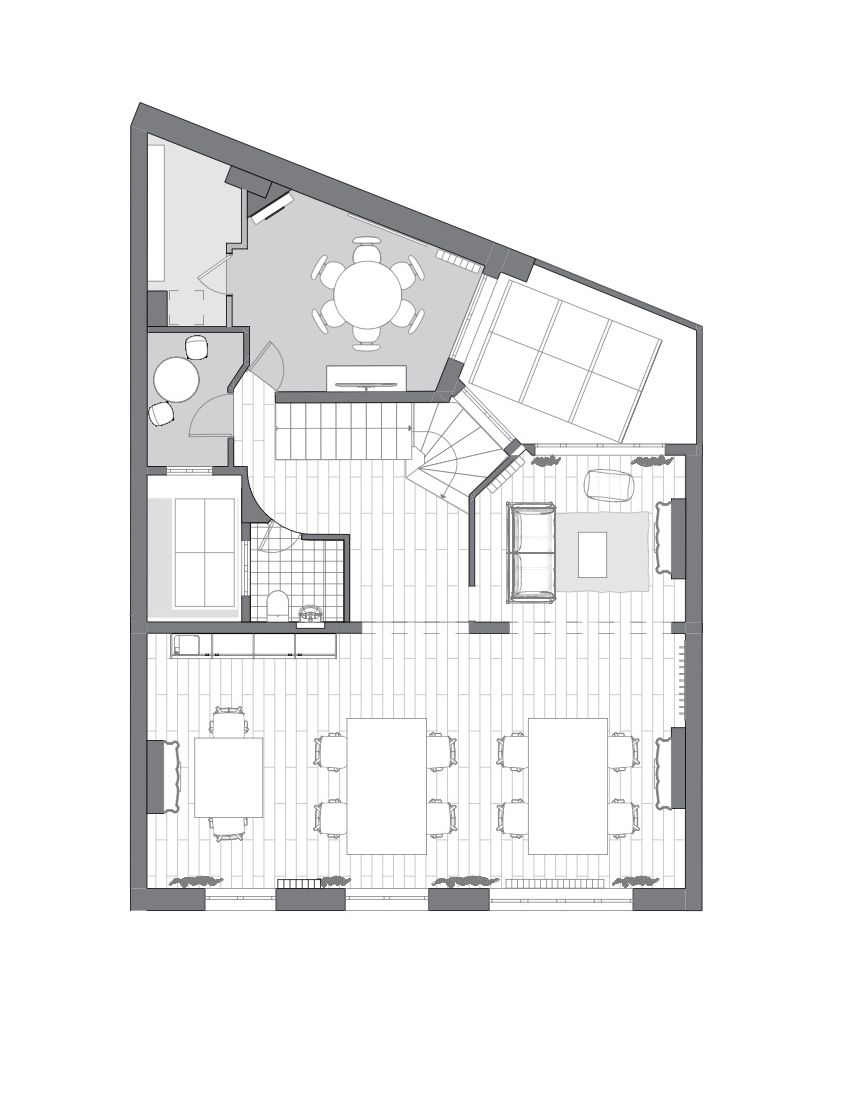
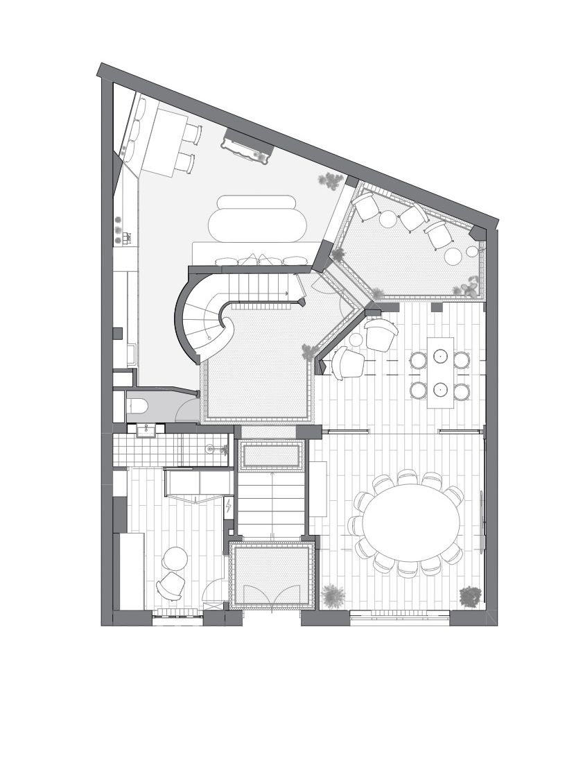
L'agence de création digitale Area 17 installe son nouveau Clubhouse dans un hôtel particulier du Canal Saint Martin, un lieu de travail qui reflète la culture et les valeurs de l'entreprise.
Une rénovation complète des lieux a permis d'ouvrir les perspectives, faire circuler la lumière, valoriser le patrimoine architectural et fluidifier les échanges et la création. Béton, contreplaqués, et formes épurées dialoguent avec le parquet ancien, les moulures et les cheminées pour créer des lieux de vies fonctionnels et chaleureux à la fois.
Les espaces offrent un environnement de travail flexible et partagé qui permet d'accroître la collaboration et accélérer les processus de création et d'innovation pour les collaborateurs et leur communauté.
Photos - Charlotte Bommelaer
Une rénovation complète des lieux a permis d'ouvrir les perspectives, faire circuler la lumière, valoriser le patrimoine architectural et fluidifier les échanges et la création. Béton, contreplaqués, et formes épurées dialoguent avec le parquet ancien, les moulures et les cheminées pour créer des lieux de vies fonctionnels et chaleureux à la fois.
Les espaces offrent un environnement de travail flexible et partagé qui permet d'accroître la collaboration et accélérer les processus de création et d'innovation pour les collaborateurs et leur communauté.
Photos - Charlotte Bommelaer
01 / 03