Axa
Le Peletier
Le Peletier
- Année
- 2022
- Surface
- 1000 m2
- Missions
- Architecture intérieure
- Localisation
- Rue Le Peletier, Paris

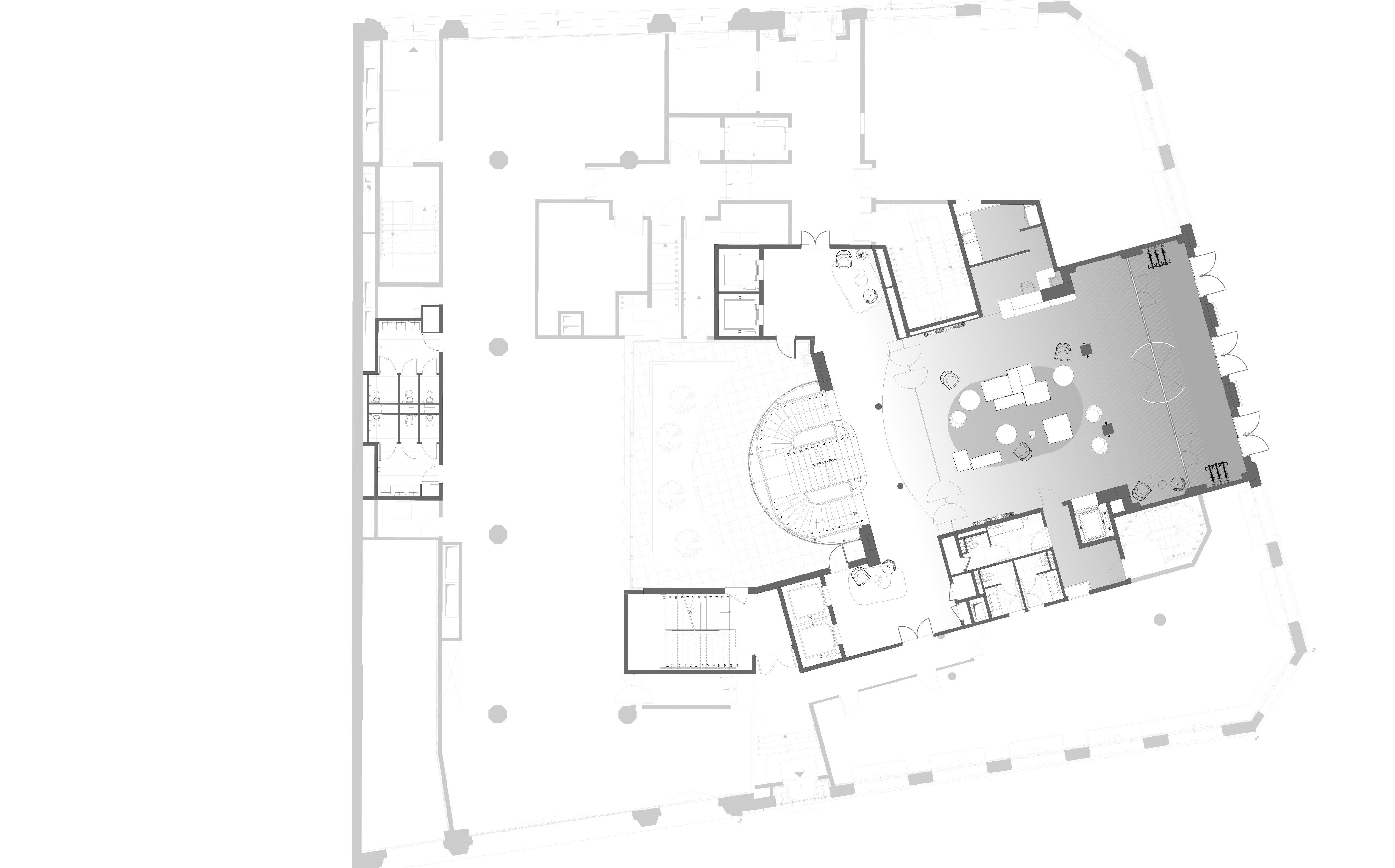
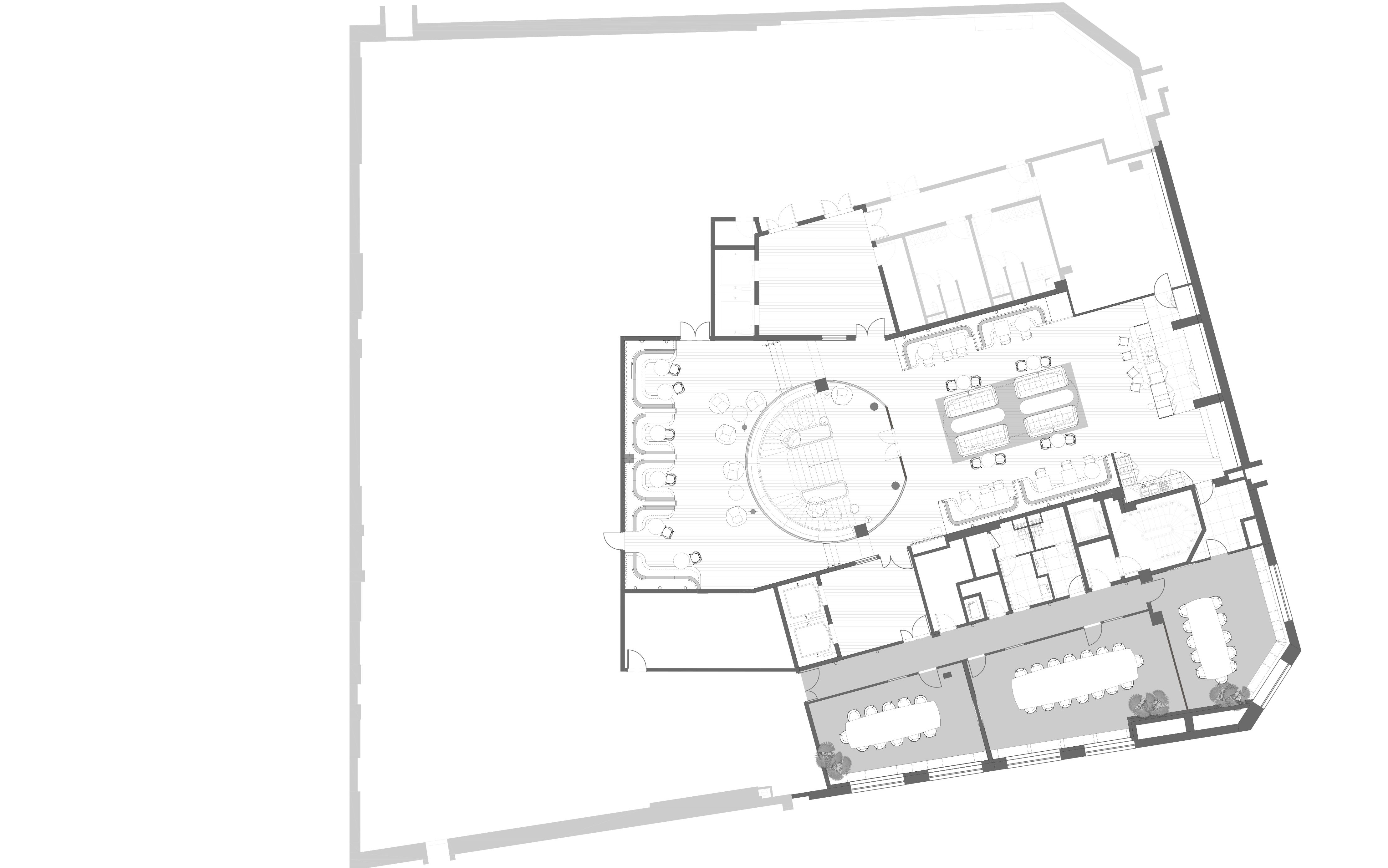
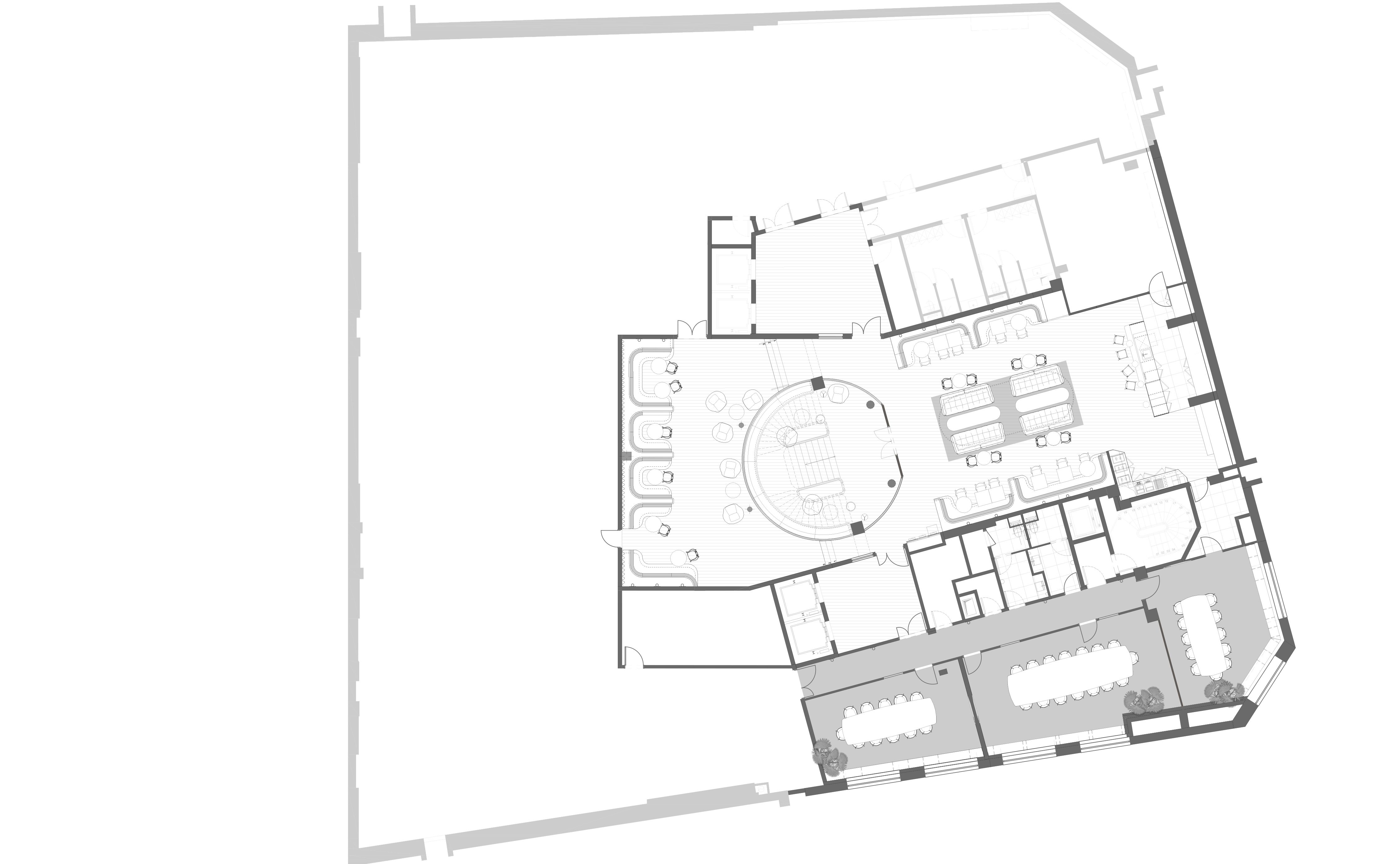
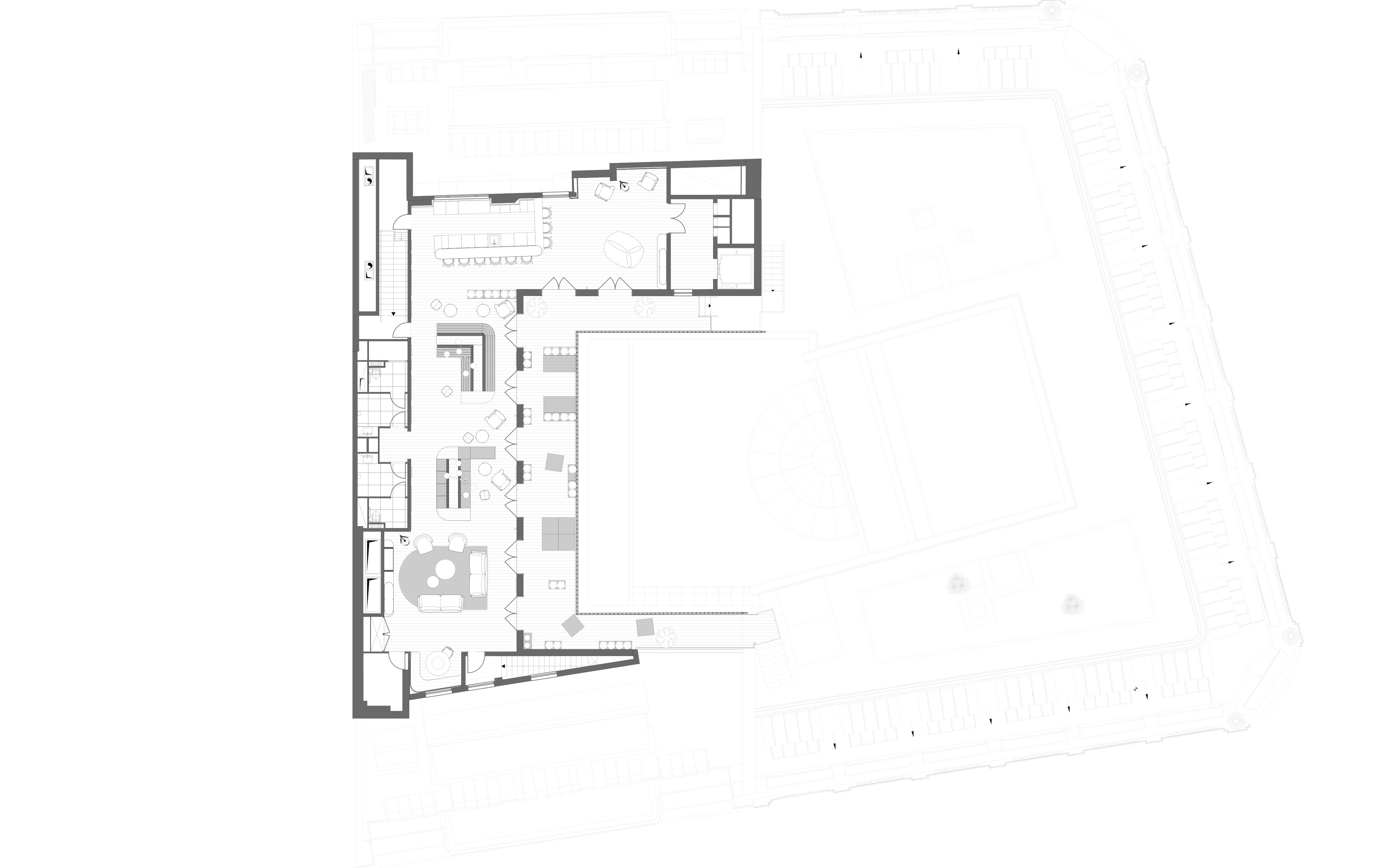
Localisé au coeur de Paris, l'immeuble Le Peletier est constitué de deux corps de bâtiment totalisant plus de 10 000 m².
Accompagnant une restructuration profonde du bâtiment par l'agence EA, le réaménagement complet des parties communes - hall, palier, restaurant, business center, rooftop - devront permettre de redonner sa pleine mesure à cet ensemble immobilier de qualité en insufflant une dynamique de modernité.
En prise avec l'évolution des usages tout en respectant "l'esprit du lieux", le projet mêle la qualité des matériaux et des détails avec une pointe d'impertinence.
Livraison : dernier trimestre 2021
Perspectives — L' Autre Image
Photos — Fred Atlan
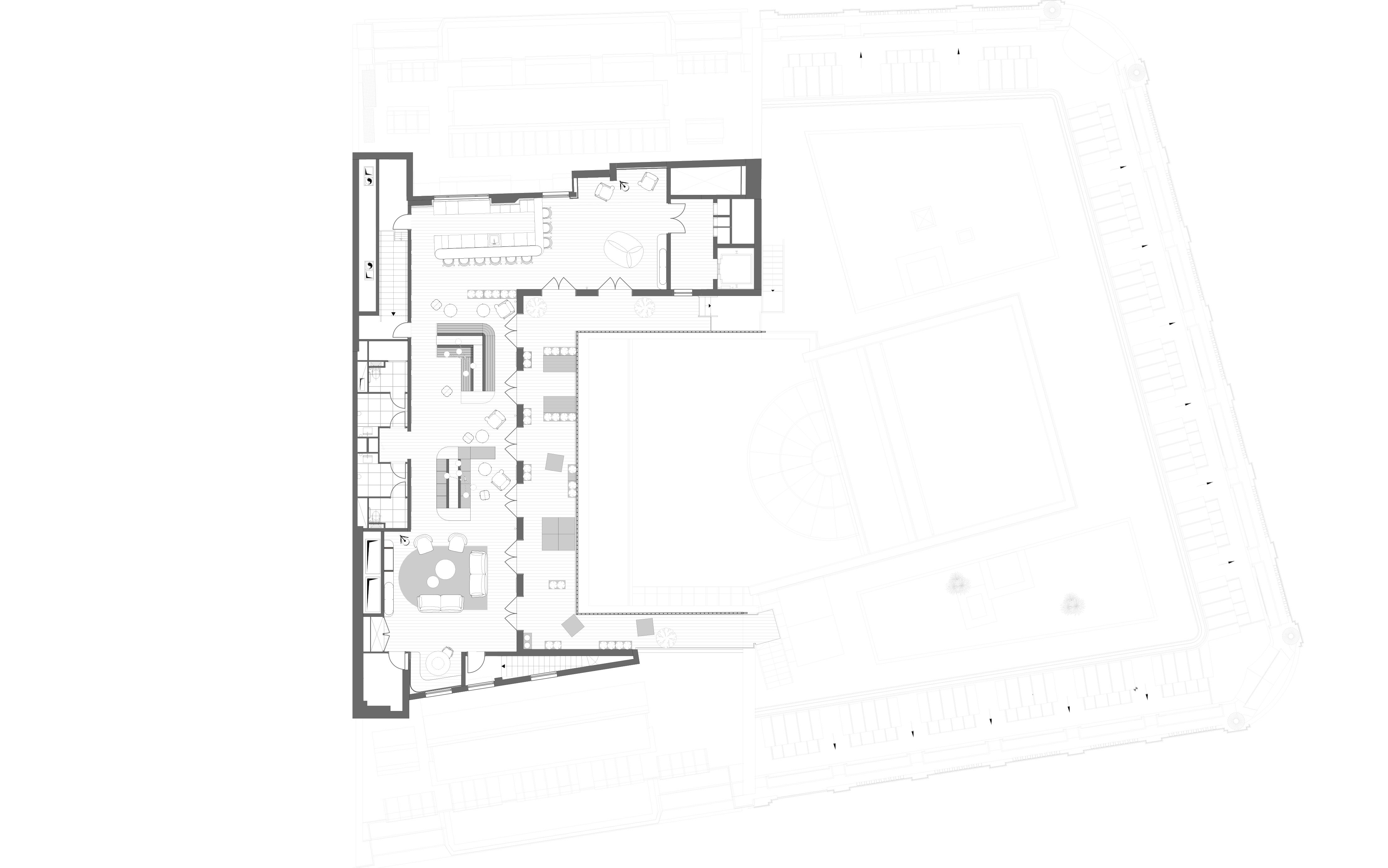
Accompagnant une restructuration profonde du bâtiment par l'agence EA, le réaménagement complet des parties communes - hall, palier, restaurant, business center, rooftop - devront permettre de redonner sa pleine mesure à cet ensemble immobilier de qualité en insufflant une dynamique de modernité.
En prise avec l'évolution des usages tout en respectant "l'esprit du lieux", le projet mêle la qualité des matériaux et des détails avec une pointe d'impertinence.
Livraison : dernier trimestre 2021
Perspectives — L' Autre Image
Photos — Fred Atlan




01 / 03

Renversant les perspectives, le plafond en inox poli agit comme une étendue d’eau suspendue.