Novaxia
Station 45
Station 45
- Année
- 2022
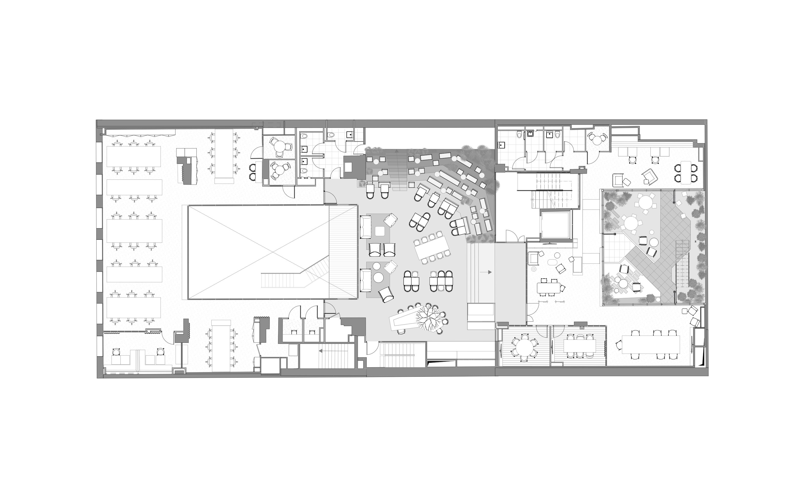
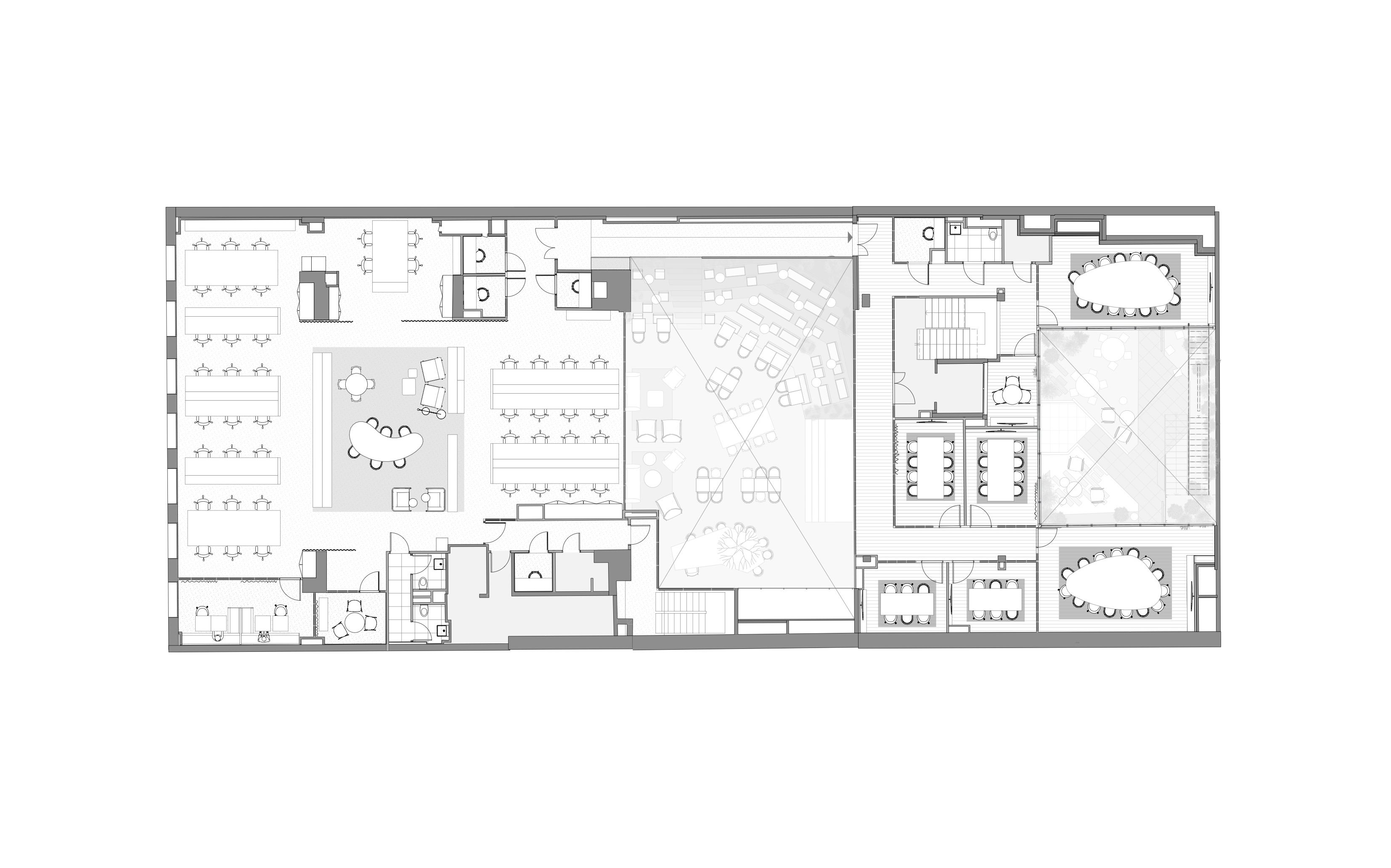
- Surface
- 2000 m2
- Missions
- Architecture intérieure
- Réalisation
- Stratégie d’aménagement
- Localisation
- Rue Saint-Charles, Paris XV
Promoteur et investisseur engagé, Novaxia a fait le pari osé d'installer son siège social dans une ancienne station service à priori impossible à aménager en bureau.
Pour relever ce défi, une restructuration lourde du bâtiment a été réalisée avec les architectes de Renaissance et Atelier Flow. Une nouvelle logique de distribution a été créée en privilégiant la fluidité, les interconnexions intérieur / extérieur et les apports de lumière au coeur de plateaux de plus de 40 m de profondeur.
Une énergie urbaine se déploie dans de nombreux espaces communs riches et modulables afin de répondre aux valeurs de partage et d'ouverture de la marque.
Photos - Charlotte Bommelaer
Pour relever ce défi, une restructuration lourde du bâtiment a été réalisée avec les architectes de Renaissance et Atelier Flow. Une nouvelle logique de distribution a été créée en privilégiant la fluidité, les interconnexions intérieur / extérieur et les apports de lumière au coeur de plateaux de plus de 40 m de profondeur.
Une énergie urbaine se déploie dans de nombreux espaces communs riches et modulables afin de répondre aux valeurs de partage et d'ouverture de la marque.
Photos - Charlotte Bommelaer
01 / 02
Un lieu à l'écoute des acteurs de la ville de demain, vitrine du savoir-faire de Novaxia.