Satellite
- Année
- 2023
- Surface
- 60 m2
- Missions
- Architecture intérieure
- Réalisation
- Localisation
- Rue Saint Charles, Paris XV

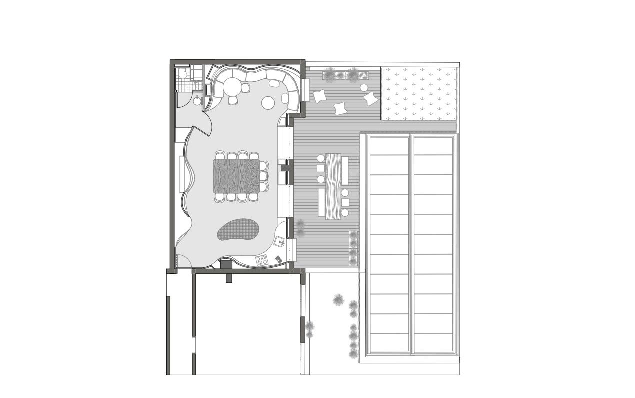
Accueillant des séminaires, sessions d’intelligence collective, diners et événements, le « Satellite » est un espace atypique et immersif lové dans une tour du 15ème arrondissement. Le lieu est en rupture avec les attendus et doit permettre de penser autrement. Pour voir plus loin.
Composés de courbes de béton et de feutres, les murs se font banquettes, alcôves, cuisine ou rangements dissimulés pour mieux brouiller les repères.
Photos - Charlotte Bommelaer
Composés de courbes de béton et de feutres, les murs se font banquettes, alcôves, cuisine ou rangements dissimulés pour mieux brouiller les repères.
Photos - Charlotte Bommelaer

Courbes de béton et de feutres, les murs se font banquettes, alcôves, cuisine ou rangements.

