White & Case
Paris
Paris
- Année
- 2020
- Surface
- 1500 m2
- Missions
- Architecture intérieure
- Réalisation
- Localisation
- Place Vendôme, Paris

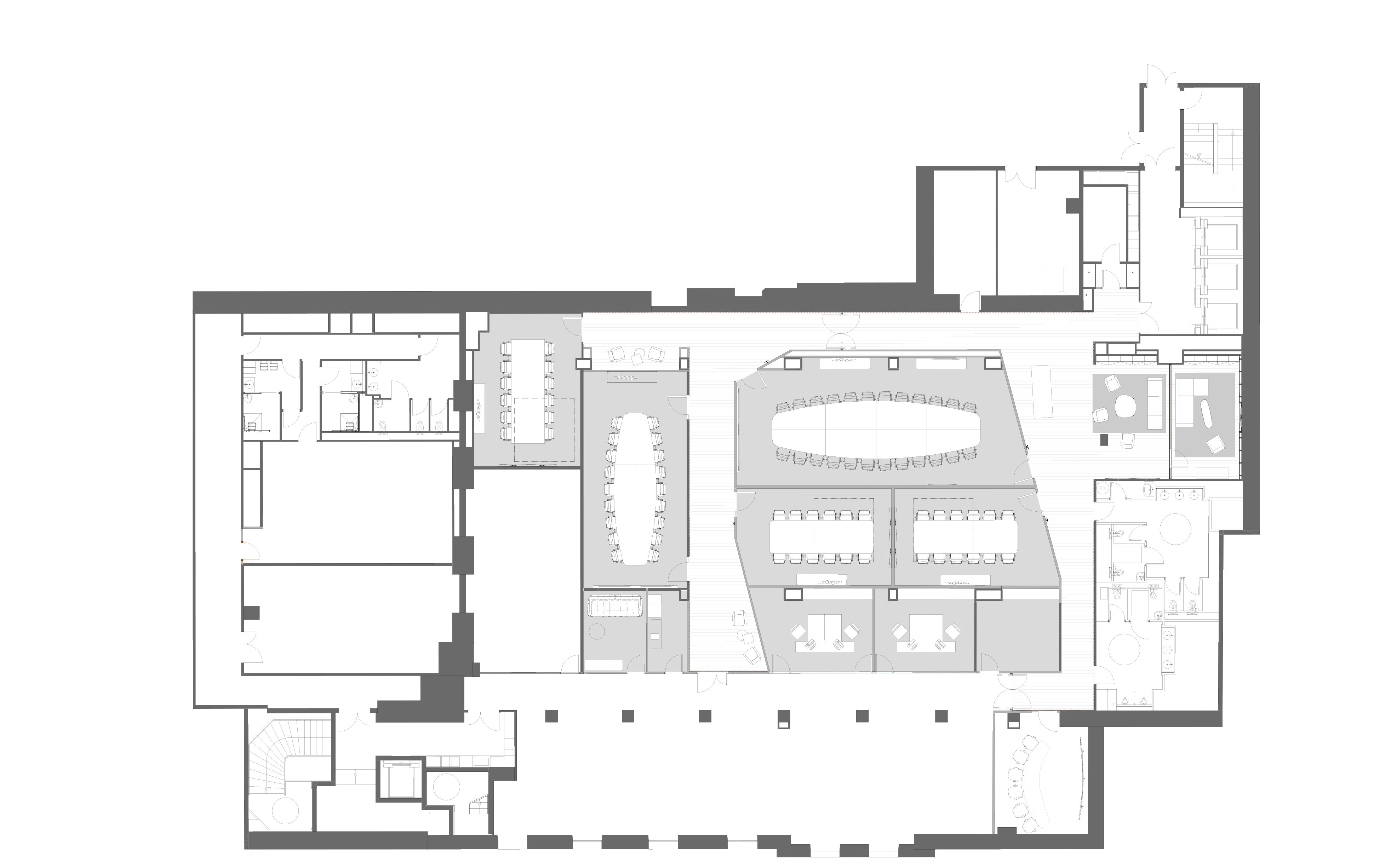
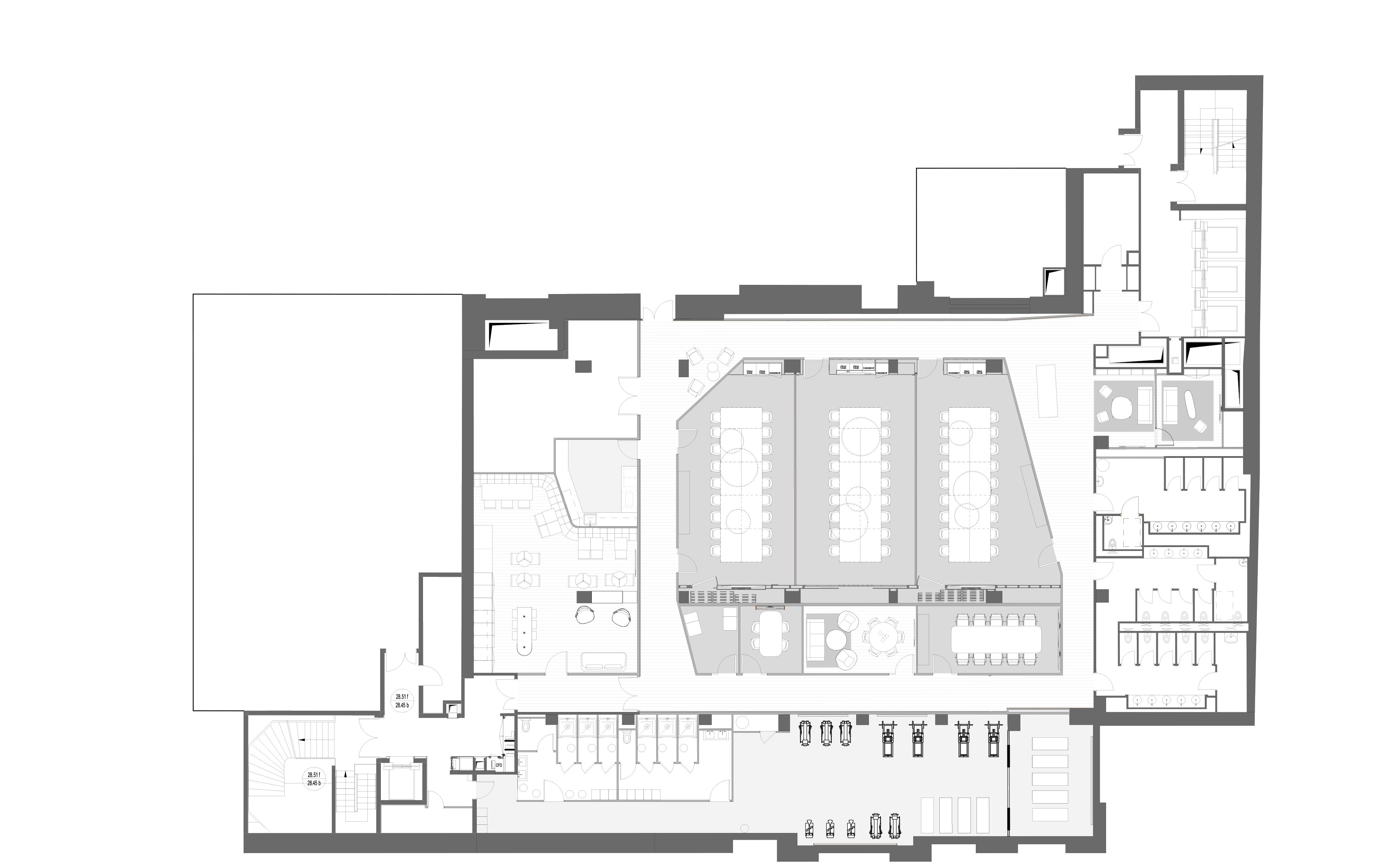
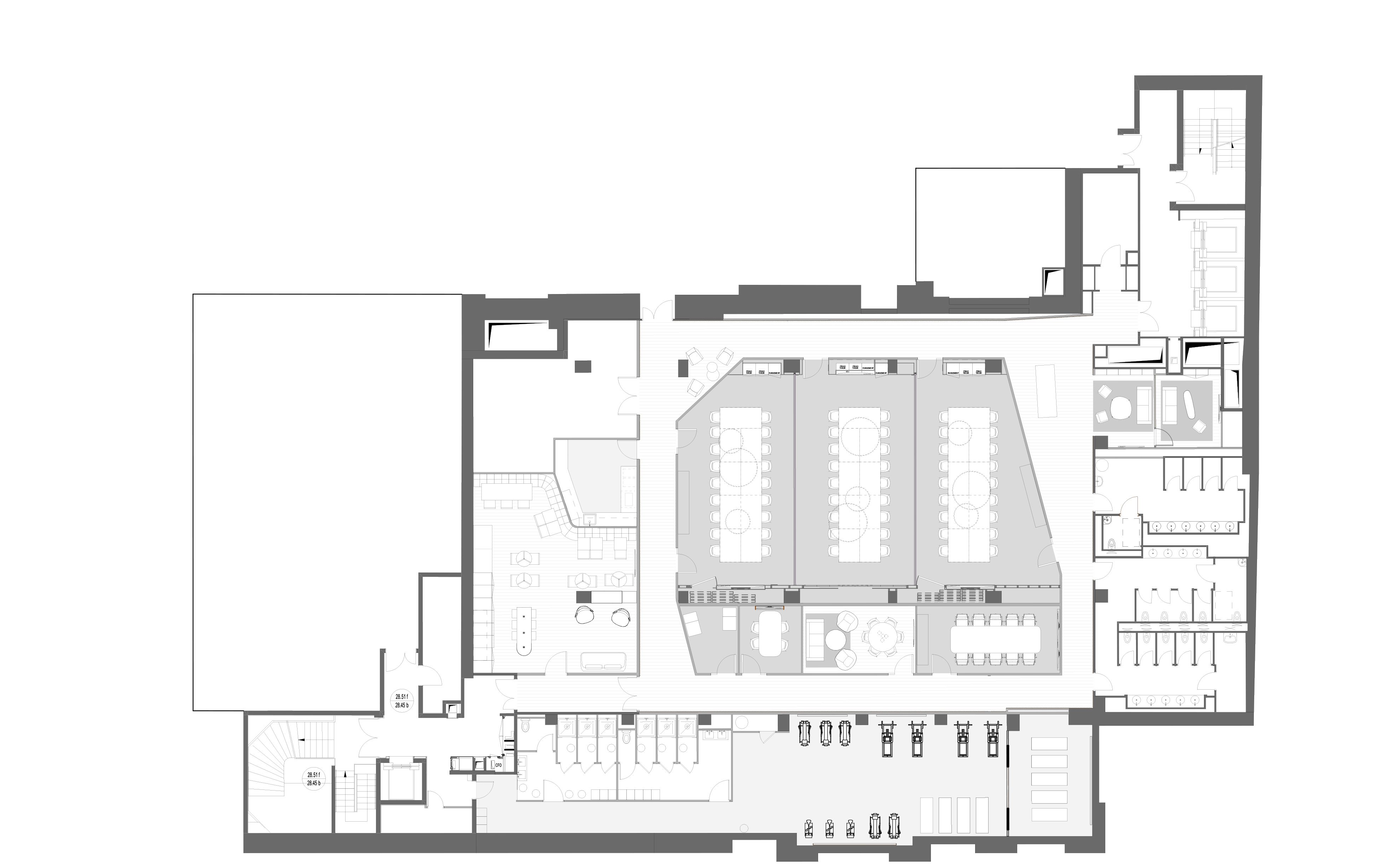
White and Case, cabinet d’avocats international souhaitait revaloriser les espaces clients de son siège historique Parisien Place Vendôme : 1500 m² d’accueil, de salle de réunions, de galeries de réception complétés d’un espace fitness et restauration pour les collaborateurs de la firme.
Il importait d’unifier sous une même identité deux zones bien distinctes; l’une occupant l’hôtel d’Evreux, magnifique bâtiment inscrit aux Monuments Historiques, l’autre composée de 2 étages en sous-sol sans réelle qualité architecturale ni lumière du jour.
Par ailleurs, une étude programmatique interrogeant les nouveaux usages d’accueil et de services dans les espaces tertiaires haut de gamme a été menée afin de répondre au mieux aux modes de fonctionnement de chacun des espaces.
Une composition architecturale audacieuse des espaces, associée au design innovant et gracieux de nombreux éléments de mobilier et luminaire a été développée au travers des différents espaces. En outre, un important travail a été mené sur les détails et matériaux afin de redonner à l’ensemble ses qualités d’excellence, de modernité et d’unicité.
Photos — Fred Atlan
Il importait d’unifier sous une même identité deux zones bien distinctes; l’une occupant l’hôtel d’Evreux, magnifique bâtiment inscrit aux Monuments Historiques, l’autre composée de 2 étages en sous-sol sans réelle qualité architecturale ni lumière du jour.
Par ailleurs, une étude programmatique interrogeant les nouveaux usages d’accueil et de services dans les espaces tertiaires haut de gamme a été menée afin de répondre au mieux aux modes de fonctionnement de chacun des espaces.
Une composition architecturale audacieuse des espaces, associée au design innovant et gracieux de nombreux éléments de mobilier et luminaire a été développée au travers des différents espaces. En outre, un important travail a été mené sur les détails et matériaux afin de redonner à l’ensemble ses qualités d’excellence, de modernité et d’unicité.
Photos — Fred Atlan


Inscrire la modernité dans un bâtiment chargé d’histoire






01 / 04






