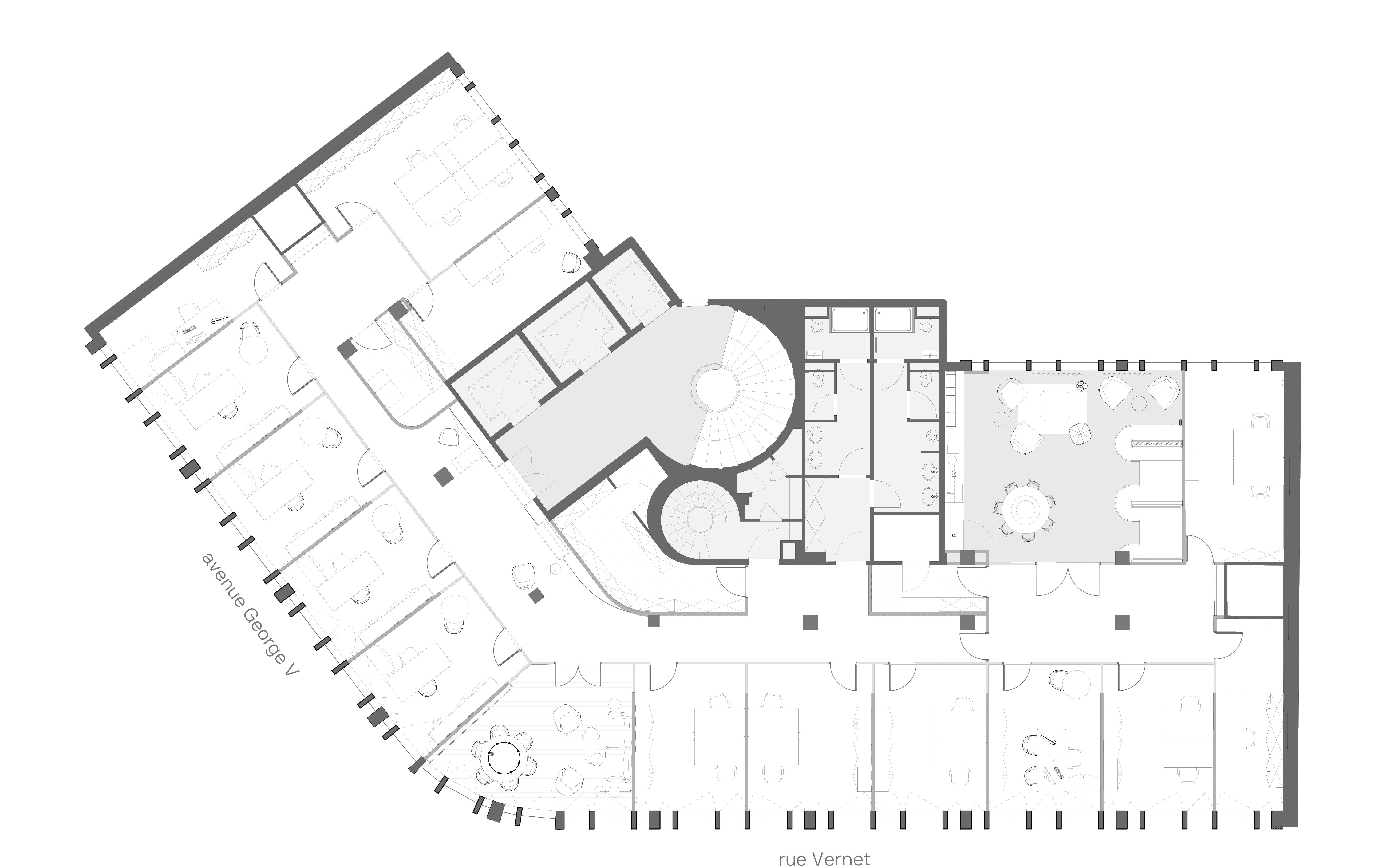
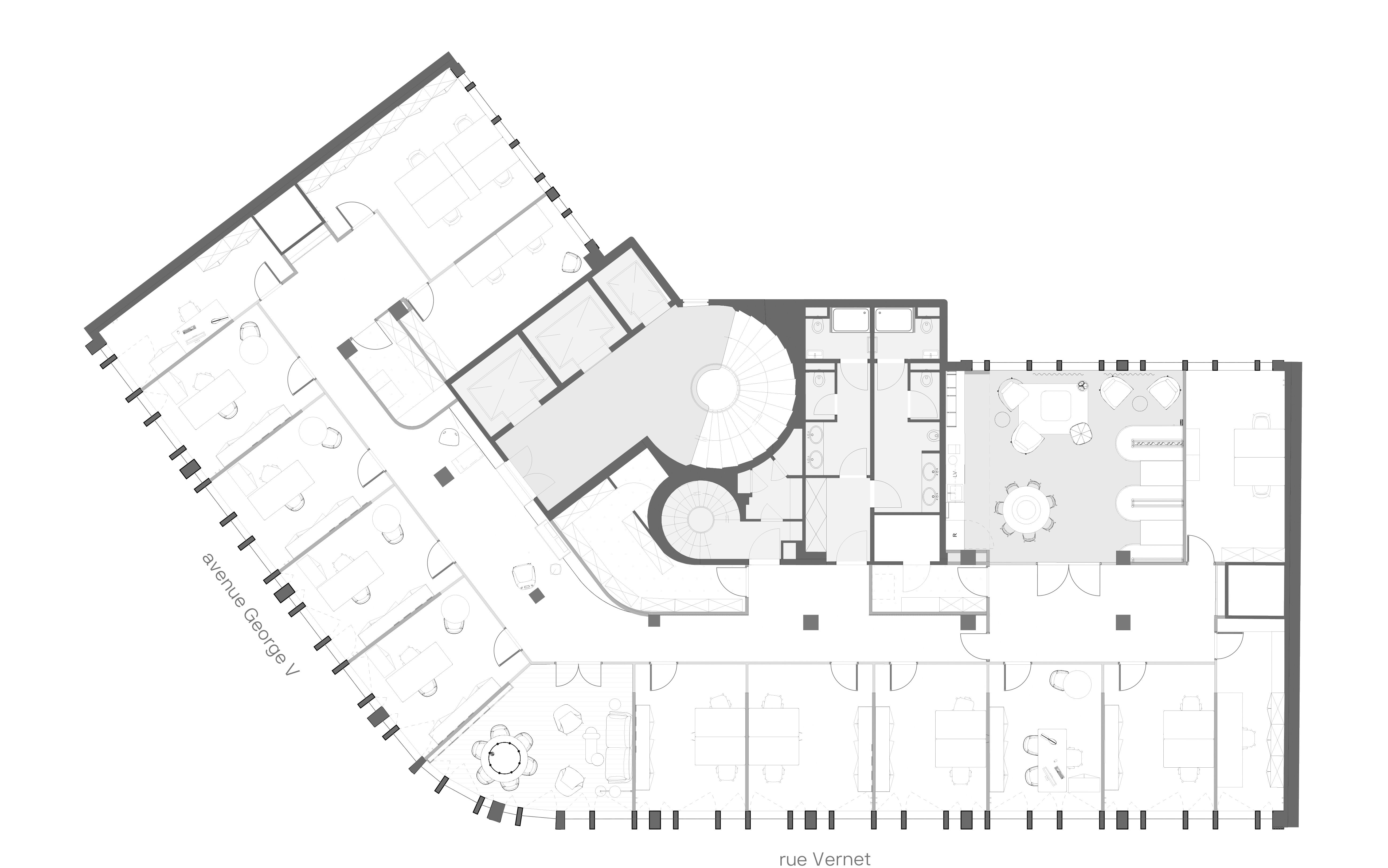
Sagard NewGen
- Année
- 2021
- Surface
- 500 m2
- Missions
- Architecture intérieure
- Réalisation
- Localisation
- Avenue Georges V, Paris VIII

Afin de donner une plus grande place à l'équipe de Private Equity, Sagard a souhaité aménager un plateau de 500m² comme une déclinaison des plateaux existants.
Alliant l'image d'excellence du groupe et une atmosphère jeune, chic et décontractée les espaces déclinent des teintes chaudes, des formes douces et des matériaux nobles.
Photos — Charlotte Bommelaer
Alliant l'image d'excellence du groupe et une atmosphère jeune, chic et décontractée les espaces déclinent des teintes chaudes, des formes douces et des matériaux nobles.
Photos — Charlotte Bommelaer


Des teintes chaudes, des formes douces et des matériaux nobles
