Groupe Hôtelier
- Année
- 2024
- Surface
- 2450 m2
- Missions
- Stratégie d’aménagement
- Architecture intérieure
- Réalisation
- Localisation
- rue François 1er, Paris
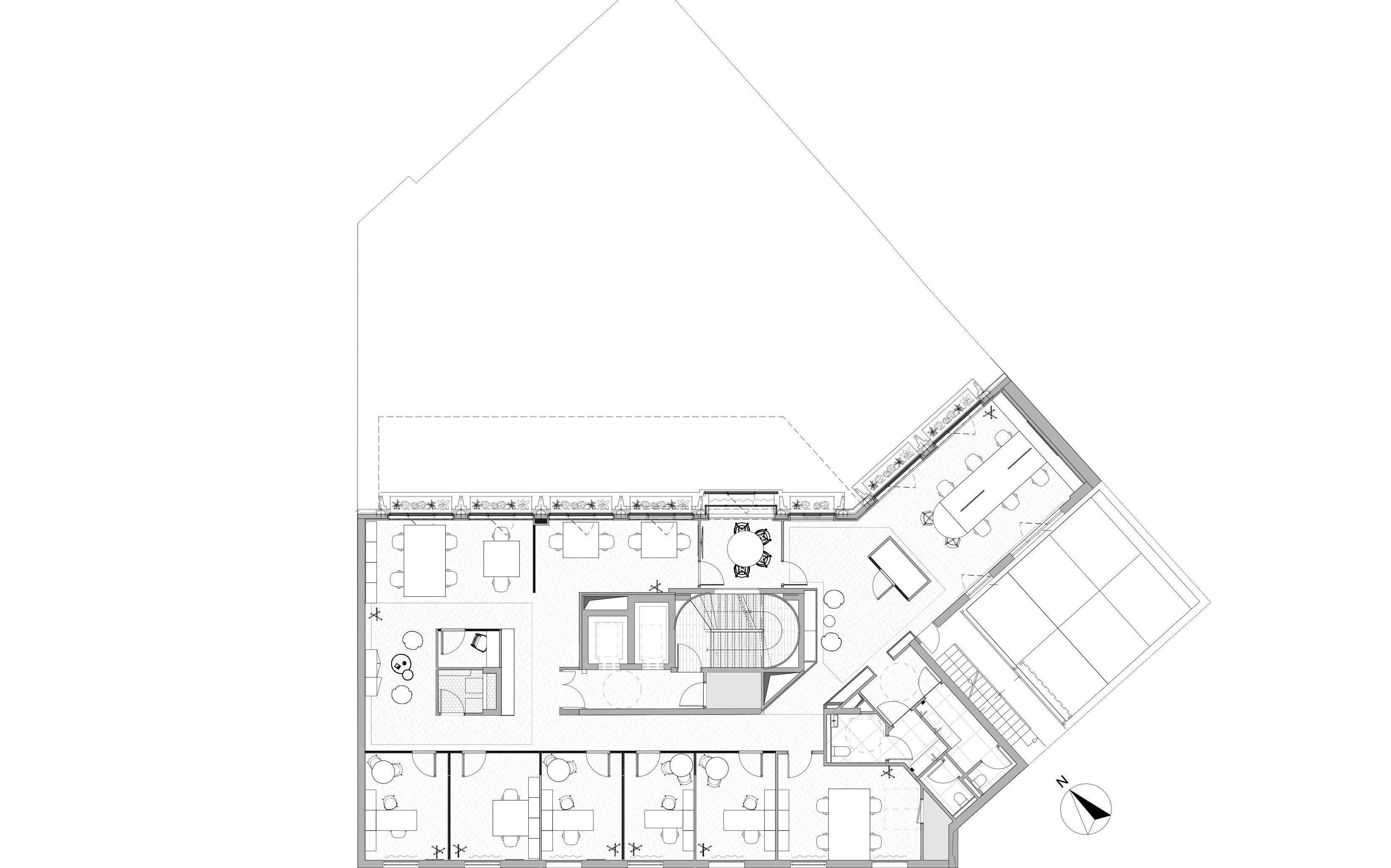
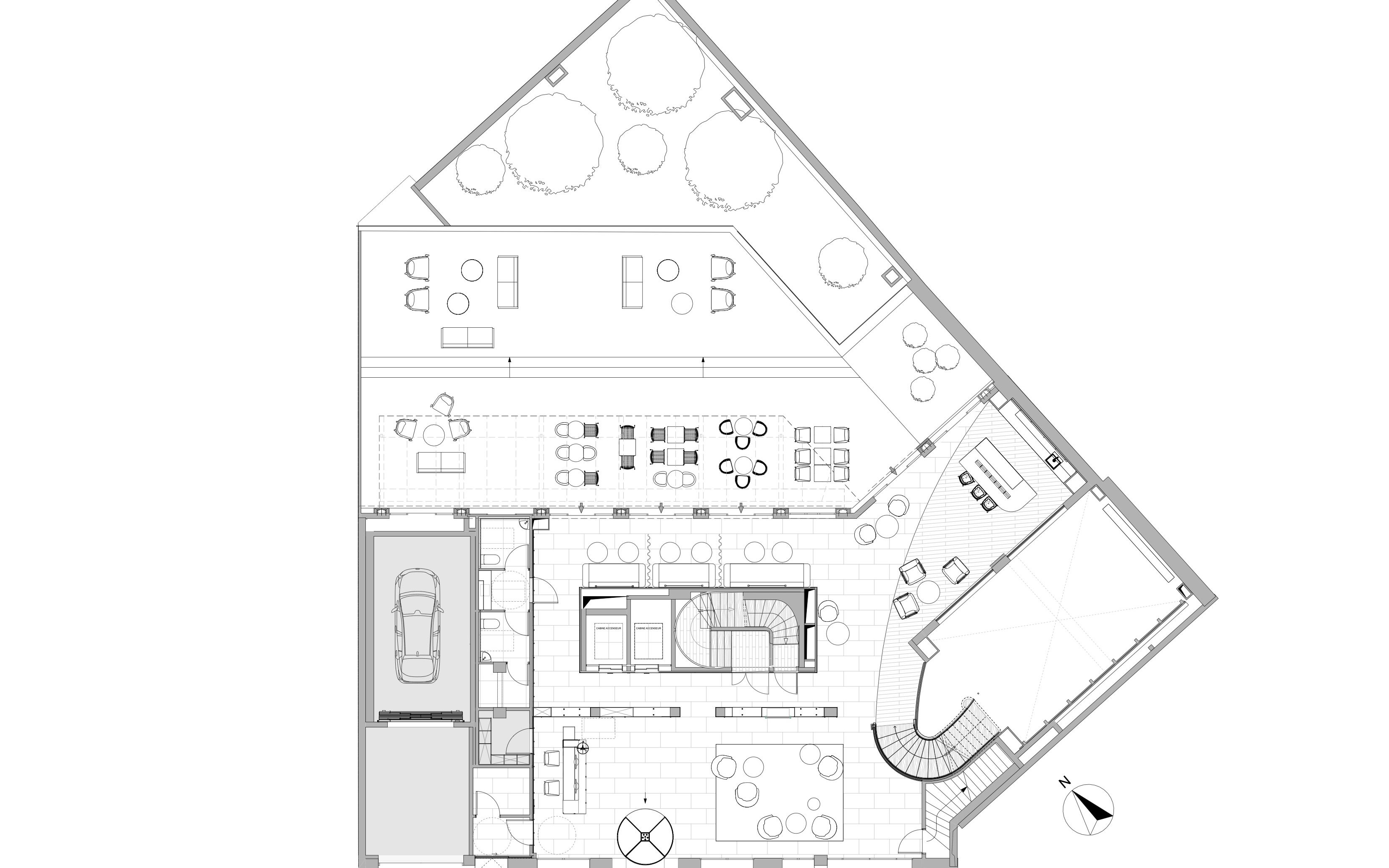
Rue François 1er, à 2 pas du Grand Palais et du pont des Invalides, un immeuble de 2 800 m² construit dans les années 1980 est métamorphosé pour créer un espace d’exception accueillant un hôtel de 9 suites et 3 étages de bureaux haut de gamme.
En collaboration avec Buchberger Architecte, l’agence a remodelé entièrement les volumes intérieurs, les façades et les parties extérieures permettant de redonner du lustre et de la qualité architecturale à ce bâtiment trop modeste.
Une atmosphère chaleureuse, des matériaux forts et des volumes traversants abondamment éclairés sont la signature du bâtiment et accueillent le visiteur dès l’entrée.
Photos - Charlotte Bommelaer
En collaboration avec Buchberger Architecte, l’agence a remodelé entièrement les volumes intérieurs, les façades et les parties extérieures permettant de redonner du lustre et de la qualité architecturale à ce bâtiment trop modeste.
Une atmosphère chaleureuse, des matériaux forts et des volumes traversants abondamment éclairés sont la signature du bâtiment et accueillent le visiteur dès l’entrée.
Photos - Charlotte Bommelaer
La réalisation d’un escalier monumental reliant la réception et le Patio a permis la transformation de ce lieu sombre et délaissé en véritable coeur de l’immeuble.
01 / 04