Bird&Bird
- Année
- 2020
- Surface
- 3000 m2
- Missions
- Architecture intérieure
- Stratégie d’aménagement
- Réalisation
- Localisation
- Rue de la Chaussée d'Antin, Paris

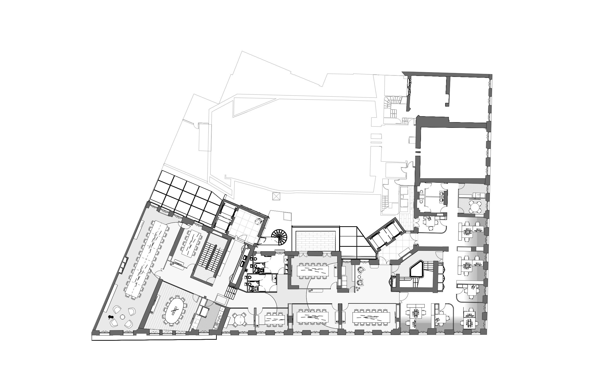
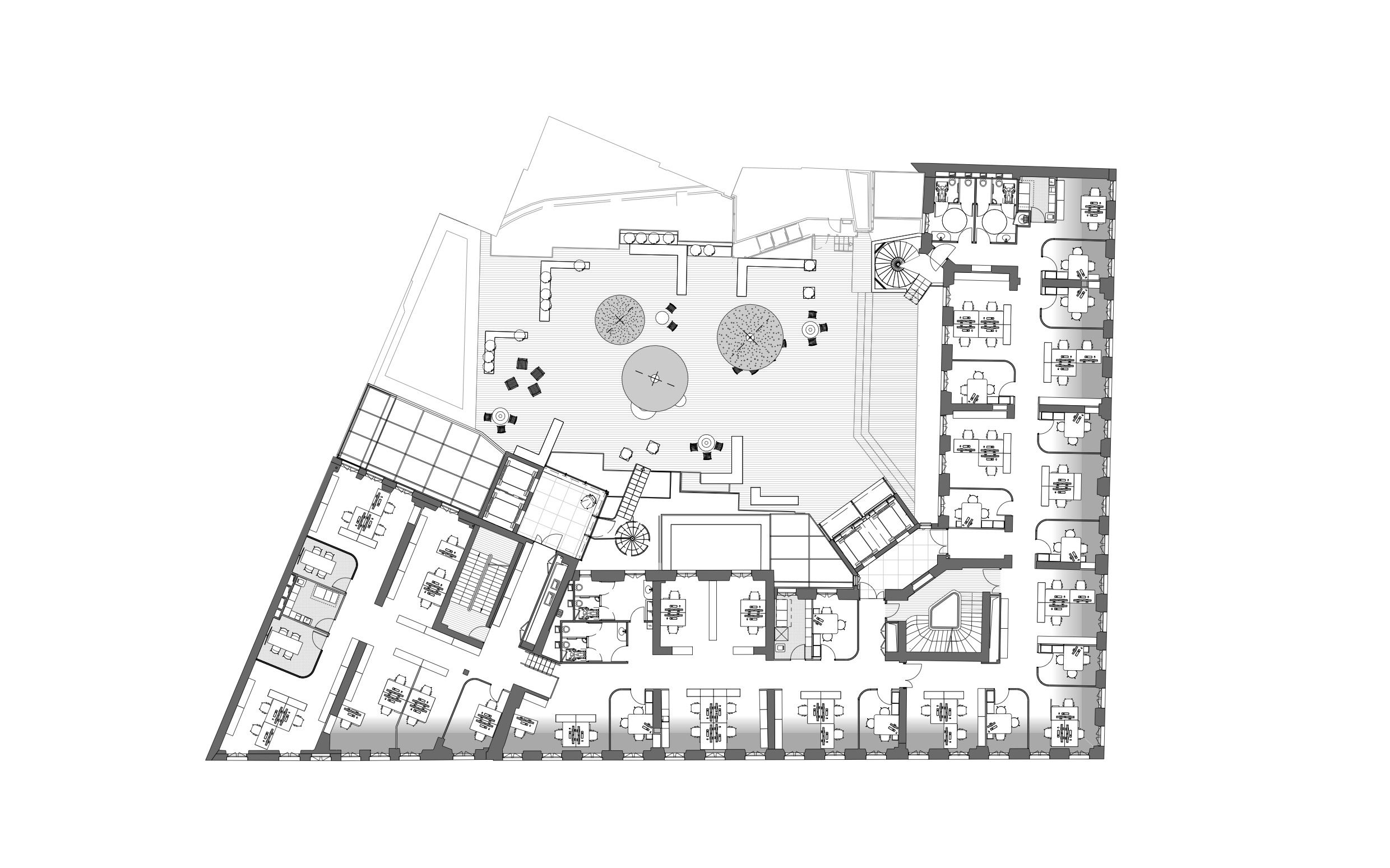
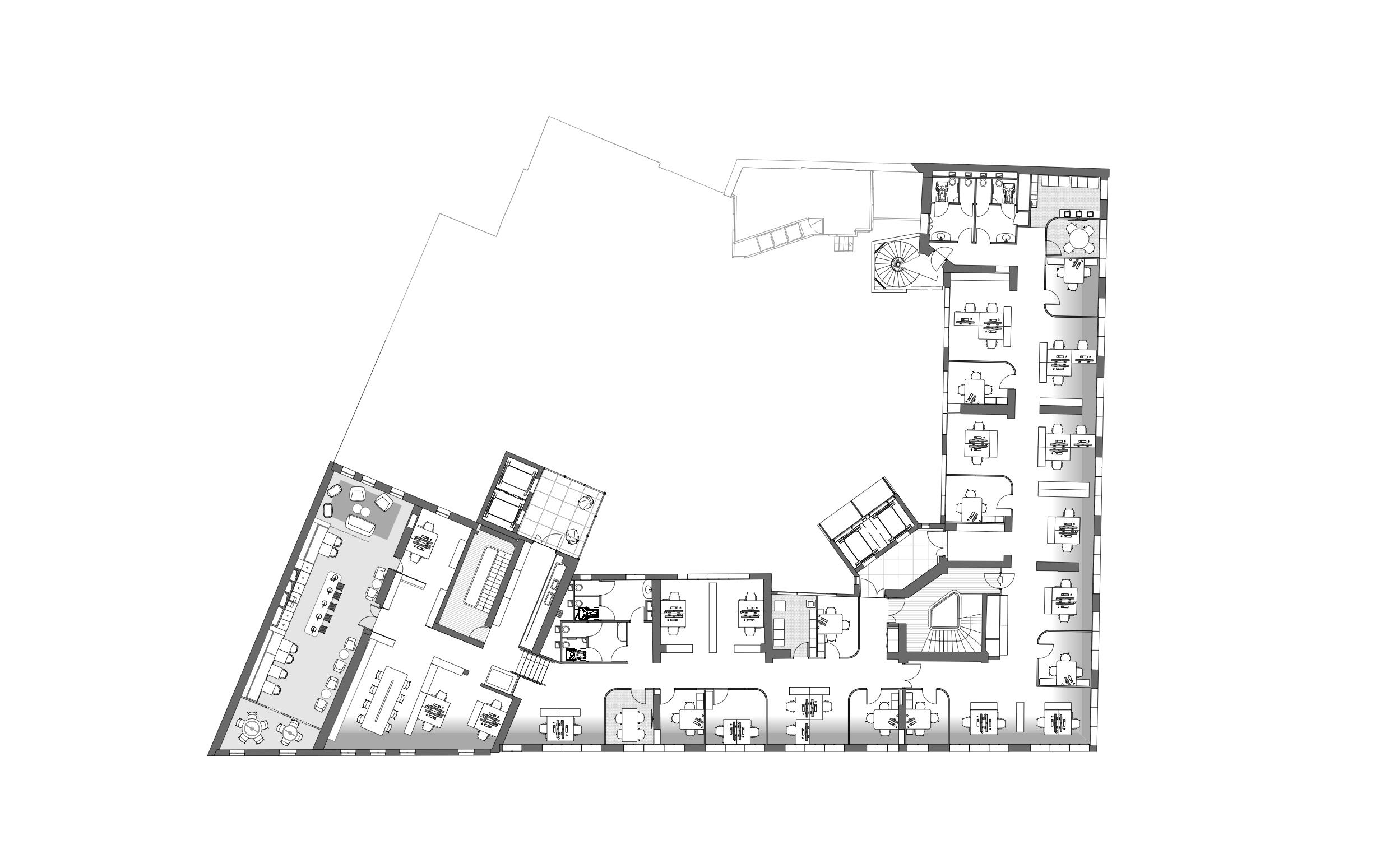
Le nouveau siège social parisien du cabinet d'avocats international Bird & Bird se déploie sur 3 000 m² d'un immeuble remarquable à deux pas de l'Opéra.
Le projet devait porter les valeurs d'innovation et de proximité revendiquées par le cabinet tout en repensant ses modes de travail. Misant sur la réactivité, la flexibilité et le partage le cabinet propose désormais à ses avocats des espaces de travail ouverts associés à de nombreux espaces de partage ou de concentration : une petite révolution dans le monde très cloisonné des bureaux d'avocats !
Le plan ouvert et la transparence qui accompagnent cette "révolution" sont équilibrés par les courbes, le bois, les matières naturelles et les couleurs chaudes pour composer un espace innovant et rassurant
Photos — Charlotte Bommelaer
Le projet devait porter les valeurs d'innovation et de proximité revendiquées par le cabinet tout en repensant ses modes de travail. Misant sur la réactivité, la flexibilité et le partage le cabinet propose désormais à ses avocats des espaces de travail ouverts associés à de nombreux espaces de partage ou de concentration : une petite révolution dans le monde très cloisonné des bureaux d'avocats !
Le plan ouvert et la transparence qui accompagnent cette "révolution" sont équilibrés par les courbes, le bois, les matières naturelles et les couleurs chaudes pour composer un espace innovant et rassurant
Photos — Charlotte Bommelaer





01 / 03

Miser sur la réactivité, la flexibilité et le partage